Help us build a sustainable future
Join our Warehouse Project
Premier Peter Malinauskas, the Government of South Australia and the City of Salisbury commit to supporting Backpacks 4 SA Kids Warehouse.
For Backpacks 4 SA Kids to continue meeting current and future demand, we are creating a purpose-built warehouse to support our operations and collaborate with other community-based organisations.
We are incredibly grateful to Premier Peter Malinauskas and the Government of South Australia for recognising the impact of our work and announcing a $500,000 contribution towards the warehouse build (announced on Monday 19 January 2026). We also thank the City of Salisbury for its commitment to a 50-year lease on a 2,500sqm site on Rundle Road, Salisbury South.
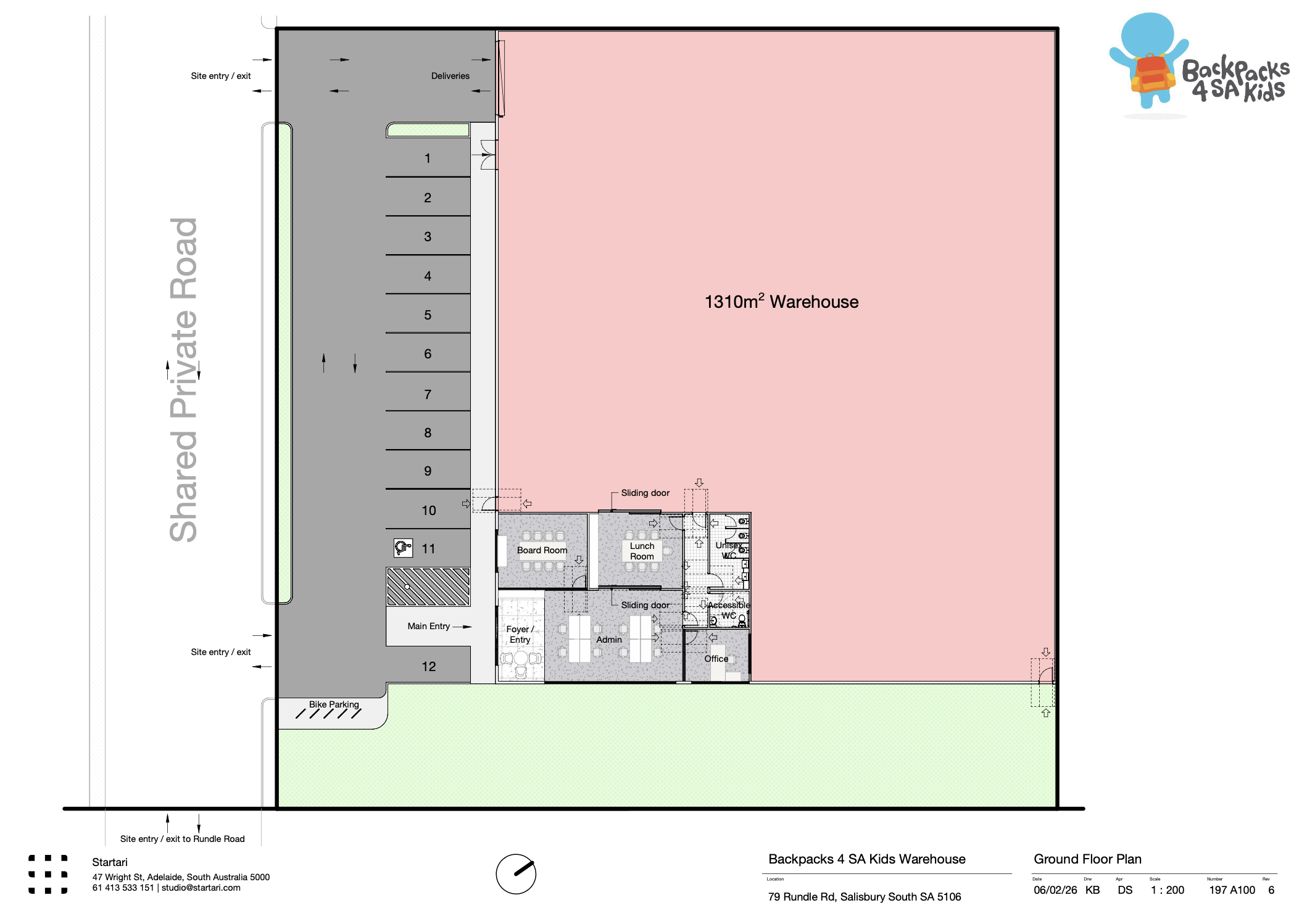
We’re excited to share our vision for our new warehouse build - a space that will help us better support the work we do now, while preparing for what’s ahead.
A huge thank you to Daniel from Statari, who, along with his team, met with us to truly understand our needs through thoughtful consultation and discussion. They took the time to listen, ask the right questions, and consider what will work not only today, but well into the future.
We are pleased to share the proposed vision and plan.


(View the full plan here.)
The warehouse is fast becoming a reality.
We are now looking for trade services and support to bring the vision and our plan to life!
We are seeking trade construction services companies, organisations and individuals to deliver every element of the new warehouse project.
If you would like to express your interest, we welcome your support. We are accepting Expressions of Interest now.
Alternatively, please contact us, we’d love to talk with you about our vision.